Vrtić Medenjak
Koprivnica, 2024/2025.godina
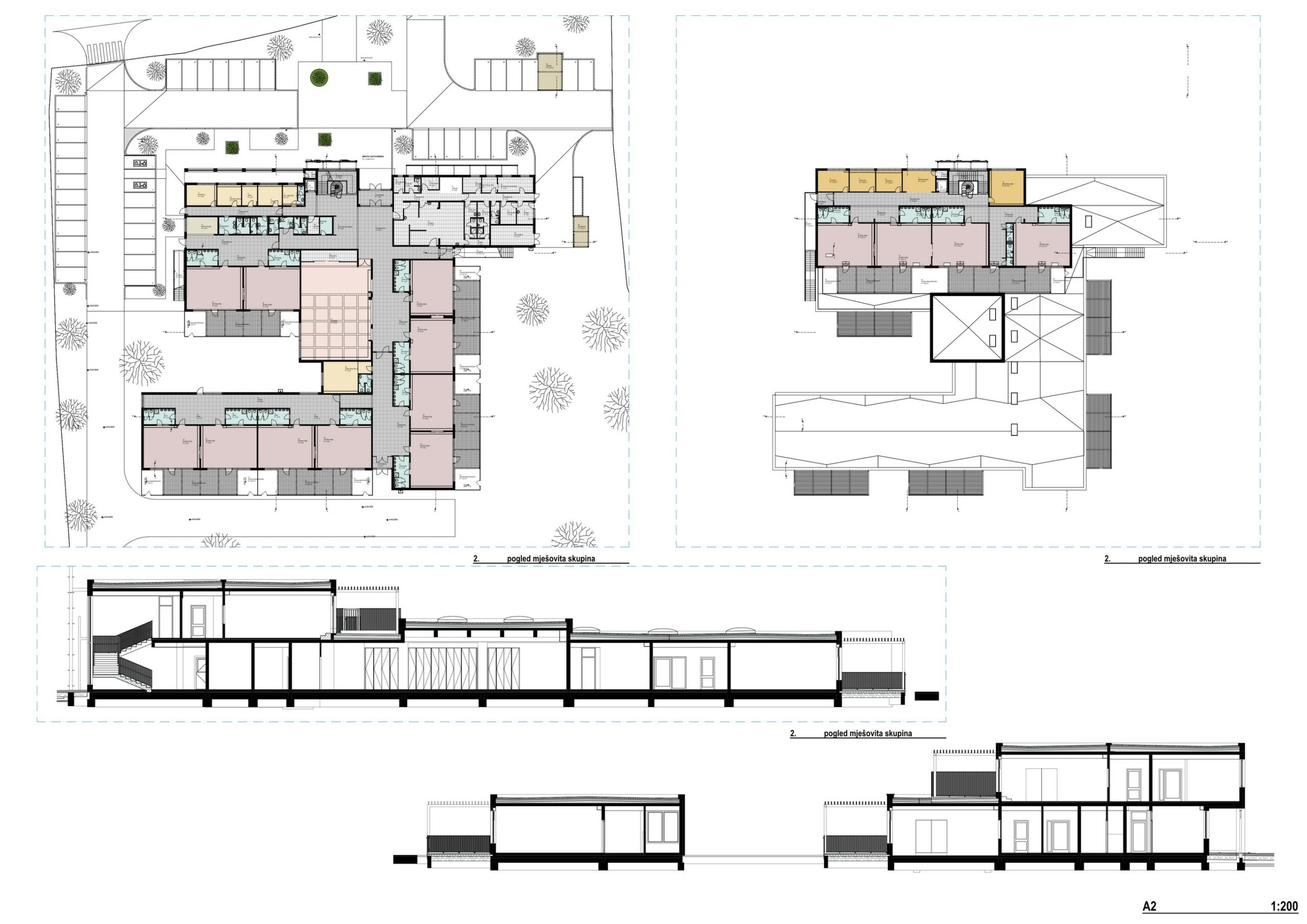
Dječji vrtić Medenjak prvi je novi objekt za predškolski uzrast izrađen u Koprivnici
nakon više desetljeća. Vrtić je projektiran prema novom pedagoškom standardu za predškolski uzrast i sadrži 14 grupnih jedinica sa svim pratećim sadržajima.
Vrtić je koncipiran kao mali grad, koji sadrži ulazni lobby, iz kojeg se granaju ulice sa pojedinim grupama. Jedinice su grupirane prema uzrastu (manji,viši). Svaka jedinica ima vlastiti vanjski prostor terasu – vrt. Po dvije jedinice se mogu za određene aktivnosti povezati, a dijele i prošireni ulazni prostor u kojem se, također, može odvijati dio rada sa djecom. Vrtić je razvijen kao prizemni, a samo manji dio je na I. katu.
Dizajn interijera je naglašeno jednostavan i omogućuje lako snalaženje u prostoru. Prostori se „prelijevaju“ jedan u drugi, lobby u dvoranu za više namjena, „ulice“ pulsiraju u proširenja (zajednički prostori jedinica). Upotrijebljeni materijali su naglašeno topli, ali je oblikovanje ujedno i vrlo jednostavno, kako bi se izbjegao kaos boja i oblika, već prije no što djeca stupe u prostor. Tako prostor postaje svojevrsno „bijelo platno“ za izlošbe i aktivnost koje će unijeti djeca.
Mjesto gradnje
Koprivnica, 2024/2025.g.
Investitor
Grad Koprivnica
Projekt
Forma-Biro d.o.o.
Autor
Zdravko Sarapa, dipl.ing.arh.
Suradnik
Ivana Posavec, dipl.ing.arh., Suzana Mihotek, bacc.ing., Shafiq Bitar, dizajner interijera.
Stručni nadzor
Forma-Biro d.o.o.








